CB Design Services - Residentail and commercial architectural design services
architectural design services from CB Design Services Ltd architectural design services from CB Design Services Ltd
Residential1
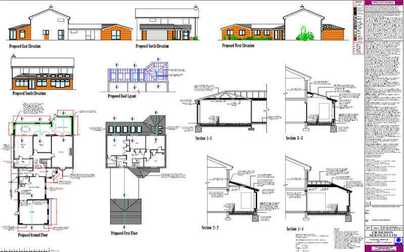
Extensions & Alterations - Planning and building regulation approvals obtained for extensions and alterations to a detached dwelling, to provide improved and enlarged living accommodation, together with a workshop/office facility; construction about to commence.
BEFORE
AFTER
Member of The Royal Institute of Chatertered Surveyors LABC

copyright © 2011. CB Design Services Ltd. All rights reserved. Site design by artworks unlimited